Boxer E-ISM * Integrert dørlukkersystem for to-fløyede dører med koordinator og elektrisk hold-åpen enhet
- System som består av to Boxer dørlukkere og E-ISM glideskinne
- Variabelt justerbar lukkestyrke på EN 2-4 eller N 3-6
- For høyre- og venstrehengslede dører som brukes uten omstilling
- Dørlukkeren sitter inne i dørbladet eller karmen og oppfyller alle krav til design
- Koordinatoren holder det aktive dørbladet i venteposisjon til det passive dørbladet er lukket
- Elektrisk hold-åpen enhet i glideskinnen med holdeområde 80°-120°
- Holdekraften i holdefunksjonen har variabel justering
- Det kan kobles til en brann- og røykmelder som gir signal til å lukke døren i tilfelle brann
- Integrert åpningsbrems, bremser dører som slås hardt opp
- Hydraulisk endeslag som akselererer døren rett før lukket stilling
- Lukkehastigheten kan ikke tilpasses individuelt
- Alle funksjoner kan justeres etter montering
Bruksområder
- Røyk- og brannverndører, dokumentasjon på egnethet med dørtypen kreves
- To-fløyet slagdør
- Symmetrisk og asymmetrisk dørdeling mulig
- Slagdører med inntil 2800 mm båndavstand og 1400 mm dørbladbredde, for dørvekt inntil 180 kg
- Min. båndavstand 1300 mm, min. bredde på passivt blad 540 mm
- For dørbladtykkelse fra 40 mm
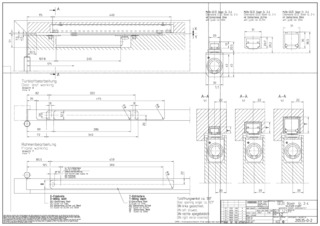
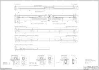
- Integrert installasjon
Monteringssituasjoner for referanseobjekter og videoer
Produktspesifikasjoner
| Boxer E-ISM | |
| Lukkekraft iht. NS-EN 1154 | EN 2 - 6 |
| Barrierefri iht. DIN 18040 til dørbladbredde (maks) i mm | 1400 mm |
| Dørbladbredde (maks.) | 1400 mm |
| Fløyvekt (maks.) | 180 kg |
| Monteringstype | Skjult |
| Åpningsvinkel (maks.) | 120 ° |
| Min. båndavstand | 1300 mm |
| Min. bredde passivt blad | 540 mm |
| Egnethet som branndør | Ja |
| Justerbar lukkekraft | Ja, trinnløs |
| Justerbar lukkehastighet | Ja |
| Justerbart endeslag | Ja, via ventil |
| Integrert åpningsbrems | Ja, kan justeres hydraulisk |
| Posisjon for justering av lukkestyrke | Oppe |
| hold-åpen-funksjon | Elektrisk |
| hold-åpen enhet på aktivt/passivt dørblad | Ja / Ja |
| integrert koordinering | Ja |
Nedlasting
Varianter og tilbehør
* Melding om produktet vises
Produktene nevnt overfor kan variere i form, type, egenskaper og funksjon (design, dimensjoner, tilgjengelighet, godkjenninger, standarder osv.) Avhenging av land. For spørsmål, vennligst kontakt din GEZE-kontaktperson eller send oss en E-Mail .