TS 5000 RFS komplett pakke * Karmdørlukker med glideskinne EN 3--6 med elektrisk frihjulsfunksjon og brann- og røykmelder
- Variabel justering av lukkekraft forfra
- Optisk visning av lukkekraften for riktig innstilling
- Lukkehastigheten justeres fra fronten med en ventil
- Endeslaget justeres fra fronten med en ventil
- Elektrisk frisvingfunksjon
- Dørlukker for høyre eller venstre hengslede dører
- Adapter for 230 V forsyningsspenning
- Røykutløserbryter med tilpasning av alarmnivå, forurensningsindikator og skjult utløsningstast for testing
- Flere røykutløserbrytere kan kobles til
- Høydejustering +/- 2 mm mulig
Bruksområder
- Brann- og røykbeskyttelsesdør
- Høyre og venstre slagdører
- Slagdører med inntil 1400 mm dørbladbredde
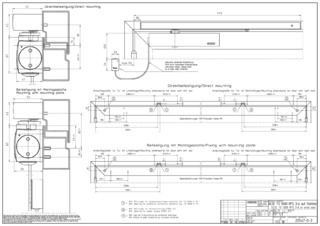
- Dørbladmontasje, hengselside
- Hold-åpen-systemer med integrert hold-åpen-funksjon med friløp
- Barrierefri adkomst iht. DIN 18040
Produktspesifikasjoner
| TS 5000 RFS komplett pakke | |
| Lukkekraft iht. NS-EN 1154 | EN 3 - 6 |
| Dørbladbredde (maks.) | 1400 mm |
| Monteringstype | Dørbladmontasje, hengselside |
| Åpningsvinkel (maks.) | 180 ° |
| Identisk utføring DIN-L og DIN-R | Ja |
| Forsyningsspenning | 230 V AC |
| Inngangsspenning | 230 V AC |
| Frekvens forsyningsspenning | 50/60 Hz |
| Bruksintervall | 100 % |
| Beskyttelsesklasse | IP20 |
| Standard samsvar | EN 1154:1996/A1:2002/AC:2006, EN 1155 |
| Godkjenninger | Generell byggetilsynsgodkjenning for DIBt som holdesystem |
| Egnethet som branndør | Ja |
| Monteringsplate med hullmønster iht. NS-EN 1154 vedlegg | Ja |
| Lengde | 327 mm |
| Bredde | 47 mm |
| Høyde | 60 mm |
| Frisvingområde | 85 ° - 160 ° |
| Justerbar lukkekraft | Ja, trinnløs |
| Justerbar lukkehastighet | Ja |
| Justerbart endeslag | Ja, via ventil |
| Integrert åpningsbrems | Nei |
| Posisjon for justering av lukkestyrke | Front |
| Visning av lukkekraft | Ja |
| Sikkerhetsventil mot overbelastning | Ja |
| Termostabile ventiler | Ja |
| hold-åpen-funksjon | Elektrisk, for frisvingfunksjon |
| Integrert røykutløserbryter | Ja |
| Forurensningsindikator | Ja |
| Tilpasning av alarmnivå | Ja |
| Integrert adapter for strømforsyning | Ja |
| Fleksibel åpningsbegrensning | Ja |
Nedlasting
Varianter og tilbehør
* Melding om produktet vises
Produktene nevnt overfor kan variere i form, type, egenskaper og funksjon (design, dimensjoner, tilgjengelighet, godkjenninger, standarder osv.) Avhenging av land. For spørsmål, vennligst kontakt din GEZE-kontaktperson eller send oss en E-Mail .