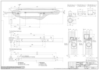
Dørlukkerhus Boxer 2-4 * Grunnramme for integrert karmdørlukker EN 2-4 med åpningsdemping
- Alle funksjoner kan justeres etter montering
- Variabel justering av lukkekraft ovenfra
- Lukkehastigheten justeres ovenfra med ventiler
- Endeslaget justeres ovenfra med en ventil
- Åpningsbremsen justeres ovenfra med en ventil
- Dørlukker for høyre eller venstre hengslede dører
- Akselforlengere leveres inntil 8 mm
- Enkel montering med få enkeltdeler og rask innstilling
Bruksområder
- Røyk- og brannverndører, dokumentasjon på egnethet med dørtypen kreves
- Høyre og venstre slagdører
- Slagdører opp til 1100 mm bladbredde, for dørvekter inntil 130 kg
- For dørbladtykkelse fra 40 mm
- Integrert installasjon
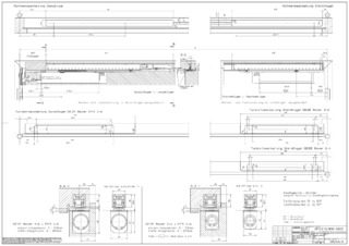
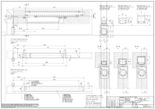
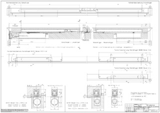
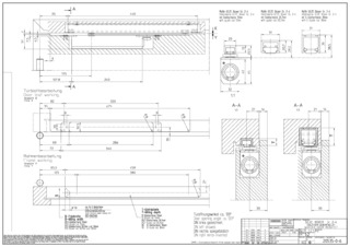
Produktspesifikasjoner
| Dørlukkerhus Boxer 2-4 | |
| Lukkekraft iht. NS-EN 1154 | EN 2 - 4 |
| Dørbladbredde (maks.) | 1100 mm |
| Fløyvekt (maks.) | 130 kg |
| Åpningsvinkel (maks.) | 120 ° |
| Identisk utføring DIN-L og DIN-R | Ja |
| Standard samsvar | EN 1154:1996/A1:2002/AC:2006 |
| Egnethet som branndør | Ja |
| Lengde | 286 mm |
| Bredde | 32 mm |
| Høyde | 45 mm |
| Justerbar lukkekraft | Ja, trinnløs |
| Justerbar lukkehastighet | Ja |
| Justerbart endeslag | Ja, via ventil |
| Integrert åpningsbrems | Ja, kan justeres hydraulisk |
| Posisjon for justering av lukkestyrke | Oppe |
| Sikkerhetsventil mot overbelastning | Ja |
Nedlasting
Varianter og tilbehør
* Melding om produktet vises
Produktene nevnt overfor kan variere i form, type, egenskaper og funksjon (design, dimensjoner, tilgjengelighet, godkjenninger, standarder osv.) Avhenging av land. For spørsmål, vennligst kontakt din GEZE-kontaktperson eller send oss en E-Mail .