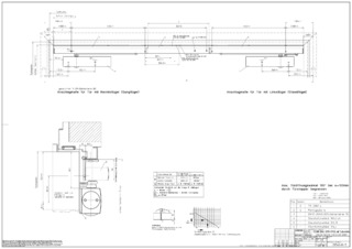
R-ISM guide rail OPP.HI.SIDE TS 5000 * With closing sequence control, electrical hold-open device on both leaves, smoke switch control unit and levers
- Integrated electric hold-open device
- Retention force of the electromechanical hold-open device can be variably adjusted
- Integrated smoke switch control unit
- Smoke switch with contamination indicator and adaption of the alarm threshold
- Additional smoke detectors can be fitted
- Operating voltage 230 V AC
- Closing sequence control holds the active leaf in the waiting position until the passive leaf is closed
- With screwed slide block
- Horizontally adjustable in the installation position by 4 mm through elongated holes
Application Areas
- Double leaf doors with closing sequence control
- Hold-open systems with integrated hold-open device and smoke switch
- Installation on the opposite hinge side
- Right and left single-action doors
- Symmetrical and asymmetrical division of door possible
- Up to 2800 mm hinge clearance
- Minimum hinge clearance 1560 mm, minimum width of the active leaf 905 mm and of the passive leaf 380 mm
Technical data
| R-ISM guide rail OPP.HI.SIDE TS 5000 | |
| Supply voltage | 230 V AC |
| Input voltage | 230 V AC |
| Frequency of supply voltage | 50/60 Hz |
| Duty rating | 100 % |
| IP rating | IP20 |
| Minimum hinge clearance | 1560 mm |
| Minimum passive leaf width | 380 mm |
| Standard conformity | EN 1155, EN 1158 |
| Approvals | General building approval from DIBt as a hold-open system |
| Length | 2730 mm |
| Width | 55 mm |
| Height | 30 mm |
| opening restrictor upgradable | Yes |
| Hold-open function | Electrical |
| Hold-open device can be overridden | Yes |
| Hold-open range | 80 ° - 130 ° |
| Smoke switch integrated | Yes |
| Contamination indicator | Yes |
| Adaption of the alarm threshold | Yes |
| Integrated power supply | Yes |
| Closing sequence control integrated | Yes |
| Height correction possible | Yes |
| Flexible opening restrictor | Yes |
Downloads
LABELLING OBLIGATION: © GEZE GmbH
Variants & Accessories
* Notice about the products displayed
The products mentioned above may vary in form, type, characteristics and function (design, dimensions, availability, approvals, standards etc.) depending on the country. For questions please contact your GEZE contact person or send us an E-Mail .