Slimdrive EMD F-IS swing door drive system * Electromechanical swing door system for double leaf fire and smoke protection doors with closing sequence control
- Closing force with variable adjustment of EN 4-6
- Opening and closing speed can be individually adjusted
- Mechanical latching action when operated without current, and electrical latching action in regular operation, which accelerates the door shortly before the closed position
- Mechanical and electrical closing sequence control holds the active leaf in the waiting position until the passive leaf is closed
- Low-energy function opens and closes the door with reduced speed, fulfilling the highest safety demands
- Servo function for motorized support when manually opening the door
- Vestibule function controls the opening and closing of two consecutive doors (interlocking door system)
- Obstacle detection detects an object through contact and stops the opening or closing process
- Automatic reversing detects an obstacle and returns to the opening position
- Push & Go function triggers the automatic drive following light manual pressure on the door leaf
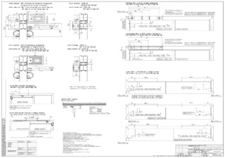
- Drive can be used with roller guide rail or link arm
Application Areas
- Fire and smoke protection doors
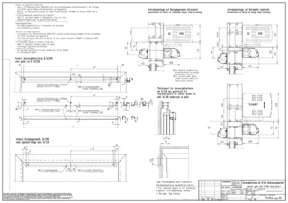
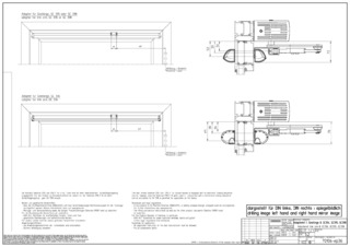
- Right and left double leaf single-action doors
- Single-action doors up to 2800 mm hinge clearance, 1400 mm leaf width and 230 kg weight
- Minimum hinge clearance 1500 mm, minimum leaf width 750 mm
- Interior and exterior doors that must close in the correct sequence even without power
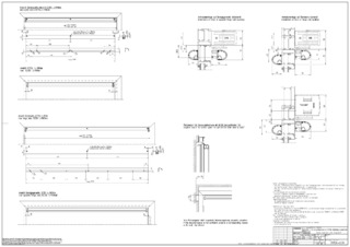
- Transom installation hinge and opposite hinge side
Configuration Variants
- Slimdrive EMD-F-IS
- Slimdrive EMD-F/R-IS
Technical data
| Slimdrive EMD F-IS swing door drive system | |
| Height | 70 mm |
| Depth | 121 mm |
| Leaf weight (max.) 1-leaf | 230 kg |
| Distance centre door hinge-drive axis (min.-max.) 2-leaf | 1500 mm - 2800 mm |
| Leaf width (min.-max.) | 750 mm - 1400 mm |
| Reveal depth (max.) | 400 mm |
| Door overlap (max.) | 30 mm |
| Drive type | Electromechanical |
| Opening angle (max.) | 130 ° |
| Spring pre-load | EN 4 - EN 6 |
| DIN left | Yes |
| DIN right | Yes |
| Transom installation opposite hinge side with link arm | Yes |
| Transom installation opposite hinge side with roller guide rail | Yes |
| Transom installation hinge side with roller guide rail | Yes |
| Mechanical latching action | Yes |
| Electrical latching action | Yes |
| Electrical closing sequence control | Yes |
| Mechanical closing sequence control | Yes |
| Disconnection from mains | Main switch in the drive |
| Activation delay (max.) | 20 s |
| Operating voltage | 230 V |
| Power rating | 230 W |
| Power supply for external consumers (24 V DC) | 1000 mA |
| Service temperature | -15 - 50 °C |
| IP rating | IP20 |
| Mode of operation | Off, Automatic, Permanently open, Shop closing, Night |
| Type of function | Fully automatic |
| Automatic function | Yes |
| Low-energy function | Yes |
| Servo function | Yes |
| Key function | Yes |
| Vestibule function | Yes |
| Obstacle detection | Yes |
| Automatic reversing | Yes |
| Push & Go | adjustable |
| Operation | Programme switch DPS, Programme switch integrated in the drive |
| Parameter setting | GEZEconnects (PC + Bluetooth), Service terminal ST 220, Programme switch DPS |
| Standard conformity | DIN 18263-4, DIN 18650, EN 1158:1997/A1:2002/AC:2006, EN 16005 |
| Suitability for fire protection doors | Yes |
Downloads
Variants & Accessories
* Notice about the products displayed
The products mentioned above may vary in form, type, characteristics and function (design, dimensions, availability, approvals, standards etc.) depending on the country. For questions please contact your GEZE contact person or send us an E-Mail .